




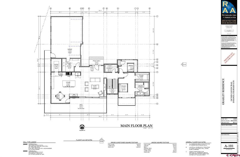
This 0.6-acre homesite borders Edgemont Highlands green space on two sides, offering exceptional privacy and an expansive feel. The lot enjoys a perfect balance of mature trees, natural openness, and a gentle slope ideal for building. Its south-facing orientation enhances natural light and warmth throughout the day. Located in The Timbers - one of Edgemont Highlands’ most desirable phases, this neighborhood sits above the rest of the community and features larger homesites ranging from approximately .4 to 2 acres. Many properties here capture gorgeous views of the southern mountains and valleys. A nearby trail provides access to U.S. Forest Service land, offering outstanding hiking opportunities just moments from your future front door. The sellers have already completed key due diligence, including soil testing and topographic mapping, both essential for new construction, and these reports are included in the purchase price. In addition, a thoughtfully designed conceptual floor plan by Reynolds Ash + Associates (RA+A Architects) is available. The proposed design features approximately 3,200 square feet of heated living space with a spacious main level, walk-out lower level, generous garage, and expansive outdoor decks providing inspiration and a valuable head start in the architectural process. Edgemont Highlands is one of Durango’s most sought-after subdivisions, known for its breathtaking natural beauty and cohesive architectural standards. Residents enjoy central water and sewer services, over 200 acres of open space, more than 10 miles of private trails, private access to the Florida River, and close proximity to the San Juan National Forest and Weminuche Wilderness. Outdoor adventures abound with nearby access to the Animas River, Vallecito Lake, Lemon Reservoir, and Lake Nighthorse, all just minutes away. If you’ve been dreaming of building in a community that seamlessly blends privacy, convenience, and the Colorado mountain lifestyle, this is your opportunity to create a home that reflects your vision in one of Durango’s premier neighborhoods.
| 8 hours ago | Listing updated with changes from the MLS® | |
| yesterday | Listing first seen on site |
Did you know? You can invite friends and family to your search. They can join your search, rate and discuss listings with you.